- Главная
- Одномодульные бани
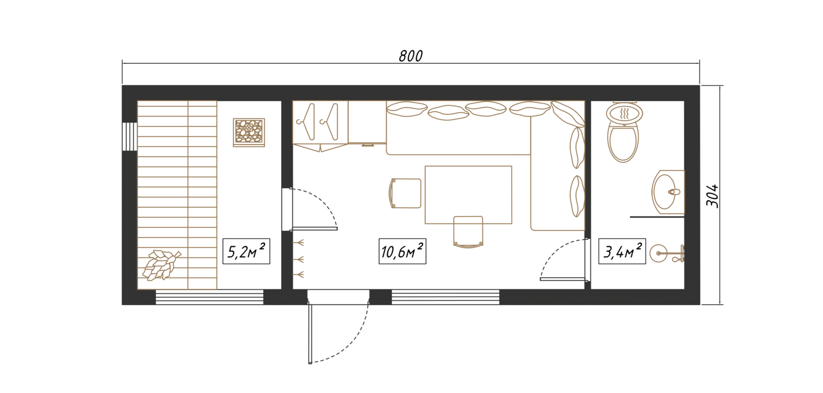
- Баня с просторной комнатой отдыха и совмещенным санузлом BN1.20
если сомневаетесь

Каркас: сухая строганная доска технической сушки. Используемые сечения: основание 190x45; 145x45 / Каркас 145x45 и 45x95. Весь каркас обработан антисептиком Borochron (Польша)
Утеплитель и пленки:
- Утеплитель Rockwool Лайт Баттс Скандик 100мм, пол, стены, потолок. Или 150мм для бани шириной 3 метра
- Пароизоляция парной: фольга на крафтбумаге, пол, стены и потолок.
- Пароизоляция комнаты отдыха: пароизоляционная пленка ПВХ 150 мкм
- Ветровлагозащитная мембрана: Strotex Basic 1300, 110 г/м2; пр-во Польша
Отделка снаружи: имитация бруса хвоя, сорт А, сечение 17x135. Покрыта антисептиком Teknos Woodex Classic, цвет на выбор по каталогам Teknos и Tikkurila
Отделка внутри:
- Комната отдыха: вагонка штиль сорт АВ, 12x110. Без покраски. На полу доска пола хвоя, сорт АВ, покрыта Teknos Satu Saunasoja цвет на выбор.
- Парная: вагонка и полки Ольха сорт АB, на полу сосна Сорт АВ
Окна и двери:
- Пластиковый профиль Brusbox 60мм, двухкамерные пакеты с тонировкой.
- Входная группа 1500x2000
- Окно в комнате отдыха 900х600 откидное
- Окно в парилке в деревянной раме из бруса 1800х600. Стекла закаленные
- Дверь в парную стеклянная, 8 мм
Печь и дымоход:
- Печь Grilld Cometa Vega на дровах или 9kwt - электрическая
- Дымоход с лазерным швом, выход через крышу двустенной сендвич-трубой
- камни 90 кг, малиновый кварцит
Электрика:
- Электроустановочные изделия: Schneider
- Проводка в комнате отдыха: ВВГНГ LS
- Проводка в парной РКГМ
Водопровод: труба полипропилен, 20 мм, спрятан в стене
Водонагреватель: 30 литров
Душ: Душевой уголок: T-80 80x80 матовый. Стена в зоне душевой покрыта ЦСП с лаковым покрытием. Смеситель на выбор
Кровля Металл-профиль ТРП 20, 0,45мм, цвет RAL 7024 / Торцевые планки, капельник
- доставка бани до вашего участка;
- аренда спецтехники (кран, манипулятор и т. д.), а также разгрузочно-погрузочные работы;
- фундамент под баню и террасу;
- мебель, бытовая техника
- организация водоснабжения, канализации, электричества на участке.
если сомневаетесь















